Trilocale in vendita

Napoli, Via SS. Giovanni e Paolo - Ottocalli
€ 205.000
Prezzo aggiornato
3 locali 3 locali
77 Mq 77 Mq
1 bagno 1 bagno

Trilocale in vendita

Napoli, Via SS. Giovanni e Paolo - Ottocalli

Descrizione annuncio

Via Santi Giovanni e Paolo

Appartamento di nuova costruzione.

Nei pressi di Piazza Ottocalli, zona ben collegata al centro storico, ricca di servizi pubblici e attività commerciali.
Proponiamo in vendita una soluzione posta ad un secondo piano, in uno stabile servito di ascensore.
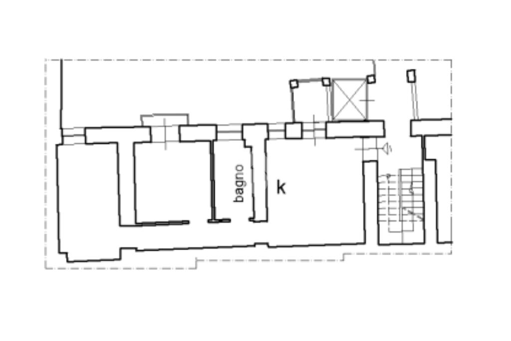
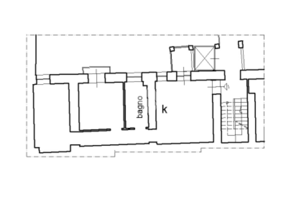
L'appartamento è composto da un ampio soggiorno-cucina con uscita sul balcone, camera da letto con balcone alla romana, cameretta con finestra, ed infine, un bagno fornito di sanitari.
L'immobile è completamente ristrutturato con infissi in anodizzato, termo arredi, caldaia, impianti di condizionamento.
E' possibile acquistare una cantinola o un posto moto.

VISIONABILE PREVIO AVVISO TELEFONICO

Tel. 081.18863337

Via Santi Giovanni e Paolo, 147.

Servizi cliente:
Per chi avesse intenzione di acquistare attraverso l'ottenimento del mutuo o di un prestito personale, è possibile, inoltre, su richiesta, ricevere una consulenza gratuita, grazie ai nostri professionisti della KIRON (società di mediazione creditizia del gruppo) i quali offrono servizi e prodotti su misura per ogni tipo di necessità finanziaria.

Mostra tutto

Nelle vicinanze

Trasporto pubblico Trasporto pubblico
Garibaldi
Garibaldi
1,7 Km
Museo
Museo
2,0 Km
Centro Direzionale
Centro Direzionale
1,5 Km
Napoli Centrale
Napoli Centrale
1,6 Km
Emiciclo di Poggioreale
Emiciclo di Poggioreale
1,9 Km
Ricariche auto elettriche Ricariche auto elettriche
EnelX EVA+ Ferraris Napoli
2,2 Km
Scuole Scuole
Salesiani Don Bosco
450 m
Liceo Classico G.Garibaldi
480 m
Istituto Tecnico Fermi-Gadda
500 m
22° CIrcolo "Alberto Mario"
660 m
Istituto Scolastico Stella Mattutina
670 m
Farmacia Farmacia
Farmacia
360 m
Farmacia Dottori di Maggio
1,0 Km
Pharmasanitaria L'Angolo Del Bebe'
1,5 Km
Farmacia Dott. Russo
1,6 Km
Leone
1,7 Km
Ospedali Ospedali
ASL NA1 Poliambulatorio
950 m
Ospedale San Giovanni Bosco
1,0 Km
ex Ospedale della Pace (Comune di Napoli - Municipalità IV)
1,7 Km
Presidio Ospedaliero "SS.Annunziata"
1,8 Km
Ospedali
1,8 Km
Supermercati Supermercati
Conad
360 m
Supermercati
610 m
Decò
660 m
MD
960 m
Carrefour Express
1,5 Km
Negozi Negozi
Vestuto
260 m
Tarallificio Leopoldo
910 m
La Salsamenteraria - Gastronomia
1,4 Km
Etienne
1,5 Km
SuperBon
1,5 Km
Bar Bar
Moses club
1,0 Km
Air Café
1,3 Km
Cuore Nero
1,4 Km
lanificio25
1,4 Km
Bar Clarean
1,5 Km
Ristoranti Ristoranti
Del Leone
220 m
Pizzeria e trattoria Corallo
320 m
A'ddò figlio 'e Michele
330 m
hostaria dalle sorelle
790 m
Da Corrado
940 m
Mostra tutto

Caratteristiche

Rif.:
61178221
Piano:
2 di 4 con ascensore (Piano basso)
Balconi:
2
Camere da letto:
2
Arredamento:
Assente
Condizionamento:
Autonomo
Mostra tutto
Prezzo Prezzo
€ 205.000
Rata mutuo Rata mutuo
€ 957 / mese
Spese annue Spese annue
€ 0
Proponi il tuo prezzoProponi il tuo prezzo

Classe Energetica

A3
A3
A3
A3
A3
A3
A3
A3
A3
EP globale non rinnovabile:
171.00 kW h/m² anno
EP globale rinnovabile:
171.00 kW h/m² anno
EP invernale del fabbricato:
EP estiva del fabbricato:
Anno di costruzione:
1960
Riscaldamento:
Autonomo
Tipo impianto:
Ad aria
Tipo alimentazione:
GPL

Prezzo ridotto di €1 (3%%)

Ti interessa visionare l'immobile?

Fissa un appuntamento  Fissa un appuntamento

Richiedi informazioni

Clicca su Leggi per aprire l'informativa
* Questi campi sono obbligatori

Calcola il tuo mutuo

Semplice e senza impegno
Anticipo

( % )
Mutuo

( % )

pochi semplici passi

inserisci i tuoi dati
Questionario completato
Grazie per aver richiesto un appuntamento senza impegno con un nostro Consulente del Credito e Assicurativo.

Hai inserito correttamente tutti i dati necessari e a breve riceverai una e-mail con un link da convalidare per inviare i tuoi dati.
Affiliato
Studio Capodichino Srl
Via Santi Giovanni e Paolo, 147 80133 Napoli (NA)

Il nostro staff


  • Angelica Pastore
    Affiliata

  • Nicolino Pastore
    Affiliato
Via Santi Giovanni e Paolo, 147 80133 Napoli (NA)
Zona: Capodichino
Mostra su mappa
Orari: Lun-ven: 9:00-13:00 15:30-19:30 Sabato: 9:00-13:00
Affiliato
Studio Capodichino Srl
Via Santi Giovanni e Paolo, 147 80133 Napoli (NA)

2026 Tecnocasa Franchising S.p.A. - P. IVA 08365160152 - Via Monte Bianco 60/A 20089 Rozzano (MI). Ogni agenzia ha un proprio titolare ed è autonoma. Privacy policy | Policy utilizzo | Cookie policy